Stylish Living

Nestled against breathtaking mountain views and named after Lake Johnson, 'Waipuna Rise' signifies 'spring water' in Te Reo Māori, embodying stability, trust, and reliability. This site marked the historic meeting between the local Maori Tribe and Gold Miners in the mid-1800s. Set within a rapidly developing area, Waipuna Rise promises a vibrant community and growth opportunities. Perfect for residence or savvy investment, it boasts 365-day visitor accommodation consent

Waipuna Rise boasts 20 Mixed Style Apartments & 21 Terraced Homes, strategically designed for breathtaking views of The Remarkables. Featuring versatile layouts, including dual-key studio apartments for additional income or extended family stays. The contemporary façade combines angular roofs and striking balustrades, softened by lighter materials and lush plantings. Inside, thoughtfully designed spaces maximize natural light and tranquility, featuring acoustically treated floors and walls. The top floor showcases award-winning kitchen designs, expansive lounges with balcony access, and spacious bedrooms, each with an ensuite and ample storage. Year-round comfort is ensured with dual heating and cooling, internal garages, and ski equipment storage. Outside, enjoy your private garden oasis and a dedicated playground for younger residents. Parking is hassle-free with single garages, driveway space, and street parking. Benefit from fee simple, freehold ownership and a low-cost Residents’ Association for shared space maintenance and investment care.

Location

Waipuna Rise has all the amenities you need. Directly across the road, Queenstown Central has plenty of options to get your flat white fix, taste some soul food or even enjoy a workout.

Loactions

Here, you’ll also find Five Mile Shopping Centre, home to a diverse range of retail offerings, including a Countdown supermarket. Queenstown Events Centre, an impressive multi-use sports and events complex, is just a 15-minute walk away and ticks the box for a range of pursuits. For those looking to hit the driving range, Frankton Golf Centre is also a short walk away.

Loactions

Remarkables Primary School and Wakatipu High School are a four- and five-minute drive away, respectively. Both schools are highly regarded in the community and offer a great balance of academic, cultural, and sporting opportunities for students. Enjoy a lively night out in central Queenstown, just a 15-minute drive away, or travel the same distance north, and visit Arrowtown, a charming community with a rich gold mining history - perfect for a day out.

key fees

Key Features

  • All Units are 365 Day Visitor Accommodation Consented
  • Fast EV Car Charger Installed to Each Carpark/Garage
  • Community playground within the Waipuna Rise grounds
  • Fully fenced & gated community with intercom communication
  • Access control system to provide security and privacy
  • Heated and fan ventilated dry store (Perfect for bikes and outdoor equipment)
  • Airbnb remote management system
  • Terrace house units feature a fully independent studio with separate entrance
  • One carpark allocated to each unit
  • Ample visitor parking
  • Miele and Fisher & Paykel kitchen appliances in Studio units
  • European engineered timber flooring
  • Heating and cooling in all living areas and every bedroom, plus under tile heating in bathrooms

Watch It Live

Live Construction Site
Waipuna Rise Exterior

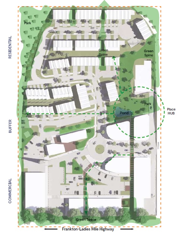
Masterplan

Stage One

key fees key fees

Crafting an Inviting Interior Design

  • Cotton Palette: A fresh, modern blend of natural oak floors, crisp white walls, and soft grey accents, perfect for a minimalist aesthetic that complements the stunning Queenstown scenery.
  • Cotton Collection: Sleek and simple, with bleached oak, French oak cabinetry, and subtle stone textures, this palette creates a light, serene space that frames the mountain views beautifully.
  • Charcoal Palette: A bold statement of luxury, featuring rich fumed oak cabinets and sleek gunmetal finishes. This palette is accented by the deep greys of St. Clair half-paint and Sage carpet, perfect for a sophisticated, modern home.
  • Charcoal Collection: A fusion of elegance and contemporary design, with sumptuous fumed oak and contrasting Snow Caesarstone. The Charcoal hues and white matte tiles provide a chic backdrop for the majestic Queenstown landscape.